产品中心
专业生产除尘器、风机、消声器、运输设备及金属结构件等设备

1、LS型螺旋输送机的特点和应用范围
LS型螺旋输送机等效采用ISO1050标准设计,制造符合ZB181005.1-2-88专业标准。结构新颖,头尾部轴承移至壳体外;中间吊轴承采用滚动、滑动可以互换的两种结构,均设防尘密封装置;出料端设有清扫装置;进出料口位置布置灵活;整机噪音低,适应性强、操作维修方便。该机采用的密封件是尼龙和聚四氟乙烯树脂类,具有阻力小,密封、耐磨性好等特点。选用滑动瓦的轴瓦材料有铸铜瓦,合金耐磨铸铁,铜基石墨少油润滑瓦等几种供选择。
LS型螺旋输送机的螺旋直径100-1250mm,共有11种规格,长度4-70m,每隔0.5m为一档,选型时应符合标准公称长度,特殊需要时可以在选配时另行提出订货要求。该机驱动采用XWD系列摆线针轮齿轮减速电动机,有单端驱动(C1制法)和双端驱动(C2制法)两种方式,螺旋机长度≤35m的按Ci制法,即单端驱动。螺旋机的中浊吊轴承分滚动吊轴承(Mi制法)和滑动吊轴承(M2制法)两种。输送物料温度≤80℃的一般采用M1制法,输送物料温度>80℃或输送湿料时宜选用M2制法。
2、LS型螺旋输送机的型号意义
3、LS型螺旋输送机的型号意义
规格型号 | 100 | 160 | 200 | 250 | 315 | 400 | 500 | 630 | 800 | 1000 | 1250 |
螺旋直径 | 100 | 160 | 200 | 250 | 315 | 400 | 500 | 630 | 800 | 1000 | 1250 |
螺距 | 100 | 160 | 200 | 250 | 315 | 400 | 500 | 630 | 800 | 1000 | 1250 |
n | 140 | 112 | 100 | 90 | 80 | 711 | 63 | 50 | 40 | 32 | 25 |
Q | 2.2 | 7 | 13 | 22 | 31 | 62 | 98 | 140 | 200 | 280 | 380 |
n | 112 | 90 | 80 | 71 | 63 | 56 | 50 | 40 | 32 | 25 | 20 |
Q | 1.7 | 6 | 10 | 18 | 24 | 49 | 78 | 112 | 160 | 220 | 306 |
n | 90 | 71 | 63 | 56 | 50 | 45 | 40 | 32 | 25 | 20 | 16 |
Q | 1.4 | 5 | 8 | 14 | 19 | 39 | 62 | 90 | 126 | 176 | 245 |
n | 71 | 50 | 50 | 45 | 4 | 36 | 32 | 25 | 20 | 16 | 13 |
Q | 1.1 | 3.1 | 6.2 | 11 | 15.4 | 31 | 50 | 77 | 102 | 140 | 198 |
、 4、LS型螺旋输送机的外形图

LS型螺旋输送机的外形尺寸表
φD | F | E | W | l | l1 | l3 | 螺旋地脚尺寸 | 相应地脚尺寸 | Q | Y | h1 | h | R | S | Z | O | H | V | J | e | P | T | d | l4 | 链b*h | ||||
LS100 | 2500 | 2500 | 2500 | 2480 | 2500 | 2640 | 1500 | 2000 | 2500 | 1500 | 2000 | 2500 | 180 | 180 | 95 | 112 | 180 | 112 | 40 | 178 | 120 | 160 | 14 | 208 | 60 | 163 | 30 | 58 | 10*8 |
LS160 | 2430 | 2500 | 2570 | 2480 | 2500 | 2640 | 1500 | 2000 | 2500 | 1500 | 2000 | 2500 | 200 | 120 | 125 | 180 | 200 | 150 | 224 | 270 | 160 | 270 | 14 | 240 | 60 | 190 | 30 | 58 | 10*8 |
LS200 | 2430 | 2500 | 2570 | 2480 | 2500 | 2640 | 1500 | 2000 | 2500 | 1500 | 2000 | 2500 | 225 | 120 | 145 | 200 | 225 | 180 | 224 | 310 | 200 | 310 | 14 | 278 | 60 | 212 | 40 | 78 | 12*8 |
LS250 | 3000 | 3000 | 3000 | 2980 | 3000 | 3140 | 1500 | 2000 | 2500 | 1500 | 2000 | 2500 | 250 | 190 | 180 | 224 | 250 | 224 | 70 | 356 | 200 | 250 | 16 | 285 | 60 | 240 | 50 | 82 | 14*9 |
LS315 | 3000 | 3000 | 3000 | 298 | 3000 | 3140 | 1500 | 2000 | 2500 | 1500 | 2000 | 2500 | 330 | 205 | 210 | 280 | 250 | 250 | 80 | 443 | 300 | 50 | 20 | 320 | 60 | 340 | 60 | 105 | 18*11 |
LS400 | 3000 | 3000 | 3000 | 298 | 3000 | 3140 | 1500 | 2000 | 2500 | 1500 | 2000 | 2500 | 350 | 220 | 224 | 355 | 390 | 280 | 90 | 528 | 320 | 400 | 24 | 395 | 60 | 384 | 80 | 130 | 22*14 |
LS500 | 3000 | 3000 | 3000 | 3000 | 3000 | 3160 | 2000 | 2500 | 3500 | 200 | 2500 | 3500 | 400 | 240 | 280 | 400 | 400 | 340 | 105 | 662 | 400 | 500 | 24 | 397.5 | 80 | 440 | 90 | 130 | 25*14 |
LS630 | 3900 | 4000 | 4100 | 3980 | 4000 | 4180 | 2500 | 3000 | 3500 | 2500 | 3000 | 3500 | 450 | 360 | 355 | 500 | 450 | 420 | 120 | 800 | 500 | 600 | 30 | 485 | 80 | 555 | 120 | 165 | 32*18 |
LS800 | 3900 | 4000 | 4100 | 3980 | 4000 | 4180 | 2500 | 3000 | 3500 | 2500 | 3000 | 3500 | 550 | 340 | 450 | 630 | 550 | 520 | 135 | 970 | 630 | 800 | 30 | 450 | 80 | 650 | 120 | 165 | 32*18 |
LS1000 | 3900 | 4000 | 4100 | 3980 | 4000 | 4180 | 2500 | 3000 | 3500 | 2500 | 3000 | 3500 | 650 | 370 | 560 | 710 | 650 | 630 | 260 | 1180 | 900 | 1180 | 30 | 485 | 80 | 760 | 140 | 200 | 36*20 |
LS1250 | 3900 | 4000 | 4100 | 3980 | 4000 | 4180 | 2500 | 3000 | 3500 | 2500 | 3000 | 3500 | 800 | 380 | 710 | 800 | 800 | 760 | 170 | 1440 | 970 | 1250 | 30 | 485 | 80 | 910 | 140 | 200 | 36*20 |
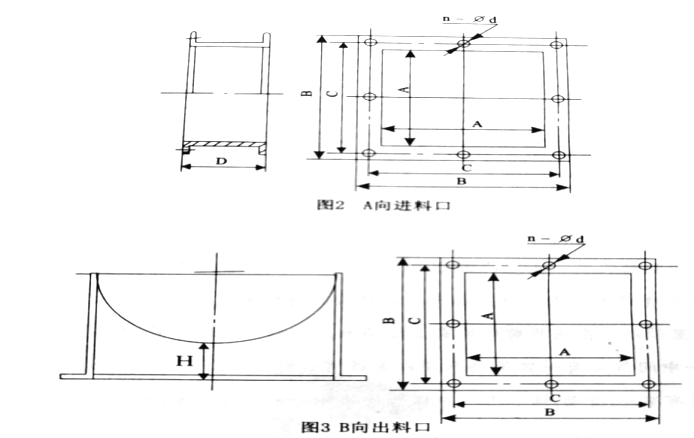
5、 LS型螺旋输送机进出料口的外形与安装尺寸(见表)

进出口法兰尺寸
螺旋型号 | LS100 | LS160 | LS200 | LS250 | LS315 | LS400 | LS500 | LS630 | LS800 | LS1000 | LS1250 | |
进 | A | 100 | 150 | 200 | 240 | 300 | 400 | 500 | 600 | 800 | 1040 | 1250 |
B | 180 | 240 | 290 | 330 | 400 | 510 | 660 | 730 | 920 | 1160 | 1370 | |
C | 146 | 200 | 250 | 290 | 350 | 450 | 610 | 680 | 868 | 1110 | 1314 | |
n | 4 | 8 | 8 | 8 | 8 | 8 | 16 | 16 | 16 | 20 | 24 | |
φD | 13 | 13 | 13 | 15 | 18 | 18 | 18 | 18 | 18 | 18 | 18 | |
H | 100 | 100 | 100 | 100 | 100 | 100 | 100 | 150 | 150 | 150 | 150 | |
出 | A | 120 | 180 | 220 | 280 | 320 | 440 | 540 | 668 | 840 | 1040 | 1250 |
B | 200 | 280 | 310 | 380 | 420 | 540 | 670 | 780 | 950 | 1160 | 1370 | |
C | 166 | 230 | 270 | 330 | 370 | 490 | 620 | 728 | 900 | 1110 | 1314 | |
n | 8 | 8 | 8 | 8 | 8 | 8 | 16 | 16 | 20 | 20 | 24 | |
φD | 13 | 13 | 13 | 18 | 18 | 18 | 18 | 18 | 18 | 18 | 18 | |
H | 100 | 100 | 100 | 100 | 100 | 100 | 100 | 150 | 150 | 150 | 150 | |
6、 LS型螺旋输送机进出料口的外形与安装尺寸(见表)

一台螺旋机通常按驱动装置、头节、若干标准中间节,选配中间节,尾节顺序组成;除头节机壳和选配节外,各节螺旋及机壳均具有互换性,在出料端螺旋有清料装置,安装时注意位置。
螺旋机由驱动装置带动,在头节前部装有止推轴承,可承受移运物料时产生的轴向力,关节机壳内设吊轴承及底座,每一中间节安有一只吊轴承用以支撑螺旋轴,吊轴承内装有向心球轴承(或整体滑动轴承),在尾节后部装有滚动(滑动)轴承用以支撑螺旋轴和补充螺旋长度的误差,安装时应从头部开始,按顺序进行。
在总体布置时还应注意,不要使底座和出料口布置在机壳接头的法兰处,进料口也不应布置在吊轴承的上方,如果因为开出料口影响底座的安排而不能遵循本规定时,使用单位应绘制螺旋机总图。
3、 选型须知
本系列设备配用XWD系列摆线针轮减速机,分直连式与链条式二种。如用户对驱动装置具体要求,需详细注明。
用户根据工艺需要选择所匹配的设备时,需注明型号规格及技术要求,并提供设备使用场合和所输送物料的特性。
必要是用户可提供现场实际情况或设计要求,我厂协助用户设计选型,并根据现场对设备的具体要求提供详细的配套设计方案。
上一个:DJ型大倾角输送机
下一个:MS、MC、MZ系列埋刮板输送机